A Little RnR
30A
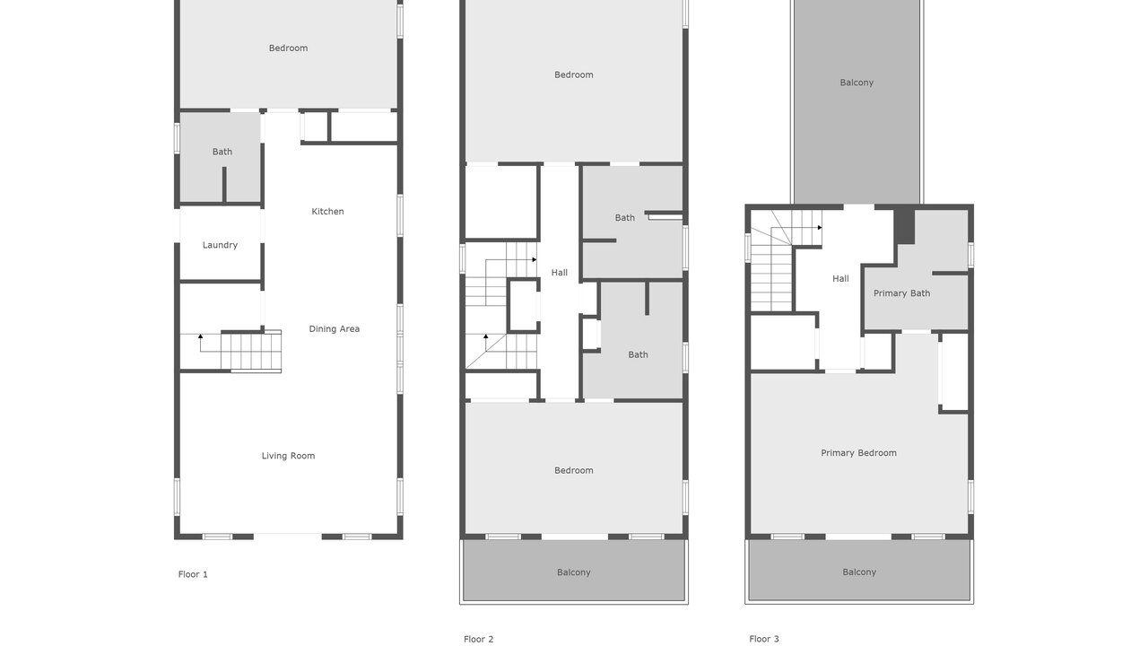
Nestled between the chic vibes of Rosemary Beach and the serene elegance of Alys Beach, this hidden gem offers the perfect escape for families, couples, or small groups. This newly furnished stunning 4-bedroom, 4-bathroom beach house offers the perfect blend of coastal elegance and modern comfort for your next vacation rental. Ideal for seeking a retreat with easy access to pristine white-sand beaches and resort-style amenities. Step inside to an inviting open-concept main level where the kitchen shines with granite countertops, stainless steel appliances, ample cabinetry, and a breakfast bar that seats four—perfect for casual meals or entertaining. The living and dining areas flow seamlessly, creating a spacious hub for relaxation with a 86'' smart tv. A versatile first-floor guest bedroom features a Murphy bed, doubling as a home office or extra sleeping space. Ascend to the second floor for a master suite, complete with French doors leading to a private balcony, and a spa-like en-suite bathroom boasting double vanities, a jacuzzi tub, and a walk-in shower. An oversized guest suite nearby also includes twin bunks and a full size bed with its own en-suite bath and balcony for added privacy. The third floor houses a second master suite with breathtaking Gulf views from yet another private balcony, plus a convenient wet bar equipped with an ice maker, microwave, and refrigerator. Top it off with a spacious open deck featuring a fire pit, ideal for evening gatherings under the stars. Outside, the home’s charming architecture fits right into the Seacrest Beach aesthetics. The family friendly community provides deeded beach access via a convenient tram, a massive 12,000-square-foot lagoon-style pool with a café and terrace, proximity to boutique shops, dining, and live entertainment at the Peddler’s Pavilion and nearby Rosemary Beach and Alys Beach. You’re just moments from white-sand beaches, Camp Creek Golf Club, and Camp Helen State Park with Lake Powell—perfect for outdoor recreation. This beach house has additional beach gear available. Based on the length of your stay you will receive a credit towards various beach sundries such as bikes, paddle boards, kayaks and chairs. LOOK for the offer in the reservation confirmation email. You must be at least 25 years of age to rent this property. The minimum acceptable ratio is one person 25 years of age for every two persons under 25 years of age. Onsite parties or group events are strictly prohibited. No pet policy is strictly enforced. No smoking or vaping is permitted and will be strictly enforced. Smoke detectors are included 3 Parking spaces Outdoor shower New appliances
Amenities
Community Pool
Fitness Center
Washing machine
Wireless Internet
- Accessibility Wheelchair Accessible
- Air conditioning
- Amenities Elevator
- Amenities Free Wifi
- AMENITIES_WIFI_SPEED_100
- AMENITIES_WIFI_SPEED_25
- AMENITIES_WIFI_SPEED_250
- AMENITIES_WIFI_SPEED_50
- AMENITIES_WIFI_SPEED_500
- Antiquing
- Baby Monitor
- Balcony
- Bay/sound
- Bicycles
- Bird watching
- Boat
- Boating
- Books
- Books for kids
- Clothes Dryer
- Coffee Maker
- Coin laundry
- Community Pool
- Computer monitor
- Deck/Patio
- Desk
- Desk chair
- Dining table
- Dishes & Utensils
- Dishes & utensils for kids
- Dishwasher
- Duty free shops
- DVD Player
- Ecotourism
- EV car charger
- Fire pit
- Fireplace
- Fitness Center
- Fitness Room/Equipment
- Gambling casinos
- Games
- Garage
- Golf
- Grill
- Hair Dryer
- Health/beauty spa
- Heated Pool
- Heating
- Horseback riding
- Hospital
- Hot Tub
- Ice Maker
- Indoor Pool
- Internet
- INTERNET
- Iron & Board
- Kayak/Canoe
- Kitchen
- Kitchen Dining Area
- Kitchen Dining Highchair
- Kitchen Dining Room
- Kitchen island
- laundromat
- Lawn/Garden
- Linens provided
- Living Room
- Marina
- Microwave
- Museums
- Outdoor play area
- Outdoor Pool
- Outlet shopping
- Oven
- Paddle boating
- Parking
- Ping Pong Table
- Porch/Veranda
- Private pool
- Refrigerator
- Satellite/Cable
- Sauna
- Shopping
- Skiing
- Sledding
- Smart TV
- Spa Whirlpool
- Stereo
- Stove
- Telephone
- Television
- Tennis
- Theme parks
- Toaster
- Toilet Paper
- Toiletries
- Towels Provided
- Toys
- Travel crib
- Video Games
- Video Library
- Washing machine
- Water parks
- Water sports
- Water Sports Gear
- Whale watching
- Wildlife viewing
- Winery tours
- Wireless Internet
- Zoo
Featured Amenities
Community Pool
Fitness Center
Washing machine
Wireless Internet
Amenities
Community Pool
Fitness Center
Washing machine
Wireless Internet
Entertainment
- Smart TV
- Television
Essential amenities
- Air conditioning
- Clothes Dryer
- Hair Dryer
- Heating
- Iron & Board
- Linens provided
- Towels Provided
- Washing machine
- Wireless Internet
General
- Pets Not Allowed
- Internet
- Living Room
- Parking
Kitchen and dining
- Coffee Maker
- Dining table
- Dishes & Utensils
- Dishwasher
- Kitchen
- Oven
- Refrigerator
- Stove
- Toaster
Local Services and Businesses
- Fitness Center
Office
- Desk
Outdoor features
- Balcony
- Deck/Patio
Pool and spa facilities
- Community Pool
Availability



















































